Разработка ливневой схемы
Идея заказать проект ливневой канализации в СПб – первое, что приходит в голову любому владельцу загородного участка, если он рассчитывает там постоянно жить. Капризный климат северной столицы и ее пригородов хорошо всем известен. На Балтике не бывает тропических ливней, но частые и подчас затяжные дожди, особенно в межсезонье, способны доставить массу неприятностей и постройкам, и подъездным путям, и садовым насаждениям с огородными посадками. Защитить собственность от дождевых и талых вод владельцу дома или дачи поможет разработка ливневой схемы жилой территории, которую готовы выполнить инженеры компании AG Garden Design.
На практике реализация проекта ливневых стоков тесно связана с другой популярной услугой компании – устройством дренажей. Дренажные работы – непосредственное продолжение устройства ливневки, так как собираемой дождевой воде нужно куда-то стекать от жилого дома и вспомогательных построек.
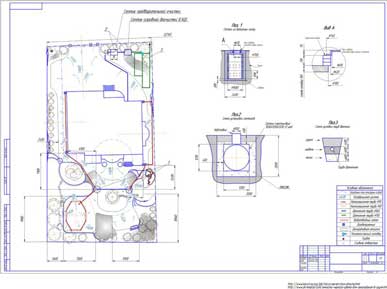
Элементы ливневой схемы
Проектирование ливневой схемы участка обязательно учитывает:
- рельеф;
- структуру почв;
- расположение строений;
- наличие естественных и рукотворных неровностей, дорожных покрытий и зеленых насаждений.
Основная задача ливневой канализации – отвести воду от фундаментов зданий, мест хранения материальных ценностей, сельскохозяйственных посадок и декоративных растений.
Первой удар небесной стихии принимает кровля. Чтобы оперативно освобождать ее от воды, на всех сооружениях устраиваются водостоки. Вода с них должна попадать либо непосредственно в водосборное отверстие ливневой канализации, либо на бетонную отмостку, которая предотвращает проникновение воды в слои почвы, окружающие фундамент постройки.
Водосборный колодец обязательно оснащается защитной решеткой, которая не дает проникать в канализацию мусору, листьям, веткам. Периодически забитая решетка прочищается.
Грамотная схема ливневой канализации предполагает расположение труб под уклон, который тем сильнее, чем меньше площадь участка. Одна труба может наполняться из нескольких дождеприемных колодцев. В том месте, где дождевые воды уходят в дренажную систему, устраивается ревизионный колодец и фильтр, в котором собирается мелкий мусор. Этот фильтр необходимо регулярно очищать, чтобы обеспечить бесперебойное функционирование системы.
ВАЖНО! Погода в городе на Неве капризна и непостоянна, температура часто балансирует около ноля. Если ливневка расположена выше уровня промерзания грунта, зимой стоки могут замерзнуть и во время оттепели не справиться с нагрузкой. Инженеры компании AG Garden Design настоятельно рекомендуют приобретать дополнительные средства электрического обогрева труб. Такая инновационная схема ливневой канализации обеспечит отвод влаги в любую погоду. Нагревающий шнур можно включить вручную или запрограммировать устройство, которое будет включать нагревательный элемент при понижении окружающей температуры до заданного значения.
Выгоды сотрудничества с нами
Компания AG Garden Design – лидер в области ландшафтного дизайна и благоустройства жилых и общественных территорий в Санкт-Петербурге и Ленинградской области. Наши инженеры, дизайнеры, монтажники реализуют самые смелые проекты оформления загородных участков. Ливневые схемы разрабатывают только профессионалов. А водосборные лотки, дождеприемники, водостоки, выполненные из современных разноцветных материалов, не только защитят вашу территорию от наводнения, но и придадут ей самобытность и привлекательность в глазах гостей.
Цены
| Наименование работ | Ед.изм. | Стоимость руб. |
|---|---|---|
| Схема дренажа, ливневая система | сотка | от 400 |